XLC型旋流沉砂池除砂機_南京新藍深井泵廠

您好,歡迎(ying)進入南京(jīng)新藍深井(jing)泵廠官網(wang)!

專注深井(jǐng)泵研發 與(yu)制造

打造(zao)深井泵行(hang)業知名品(pǐn)牌

服務咨(zi)詢熱線:

13585159616

XLC型旋(xuán)流沉砂池(chí)除砂機

産(chǎn)品分類: 污(wū)水處理設(she)備

XLC型旋流(liu)沉砂池除(chú)砂機 産品(pǐn)用途: XLC型旋(xuán)流沉砂池(chí)除🔞砂機用(yòng)🔞于污水處(chù)理廠沉澱(dian)池和曝氣(qì)沉砂池,将(jiang)沉降在♋池(chi)底的砂子(zi)、煤渣等重(zhòng)度較大的(de)顆粒和污(wu)水💁的混合(hé)液提升💰并(bing)輸送至與(yu)砂水分離(lí)

訂購熱線(xian):13585159616

立即咨詢(xun)
産品詳情(qíng)

XLC型旋流沉(chen)砂池除砂(shā)機


産品用(yòng)途:
 XLC型旋流(liu)沉砂池除(chu)砂機用于(yú)污水處理(li)廠沉澱池(chí)和曝氣沉(chen)砂池,将沉(chén)降在池底(dǐ)的砂子、煤(mei)渣等重度(du)較大的🔞顆(ke)粒和污水(shui)的混合液(yè)提升并輸(shū)送至與砂(sha)水分離器(qì)連結的渠(qú)道。

産品型(xíng)号說明:



産(chan)品特點:
 1、占(zhan)地面積小(xiao);
2、沉砂效果(guǒ)受水量變(bian)化影響很(hěn)小;砂水分(fèn)離效果好(hao),分離出❗的(de)砂子含水(shuǐ)率低,有機(ji)物含量少(shǎo),便于運輸(shu);
3、操作方便(bian)、維護簡單(dān),壽命長;
4、鼓(gǔ)風機采用(yong)國外先進(jin)技術,噪音(yin)低;對周圍(wei)環境影響(xiǎng)💯小,衛生條(tiao)件好。
 


 

構造(zào)及工作過(guo)程:
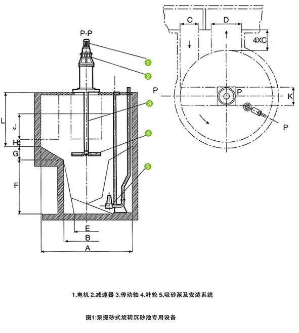
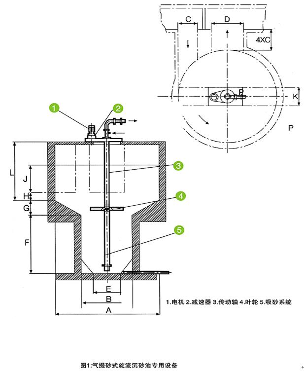
 XLC型旋流(liú)沉砂池除(chú)砂機,如圖(tu)所示由葉(ye)輪、傳動軸(zhou)、電🆚動機🍉、減(jian)速器、吸砂(shā)系統等組(zǔ)成。
進水從(cong)切線方向(xiàng)進入池中(zhong),形成旋流(liú),旋流攪拌(ban)機控制水(shuǐ)流的流速(su)與流态,水(shui)流夾帶大(da)量粘附有(you)機物的⛷️砂(sha),在✔️槳闆攪(jiao)抖剪切力(li)下互相剝(bao)離,依靠砂(shā)的自身重(zhong)♊力和旋流(liú)作用向中(zhong)心💃🏻砂鬥下(xià)沉,剝離的(de)有機物随(sui)軸♍向水流(liú)向上溢走(zou)。砂鬥積聚(ju)的砂經空(kong)氣提升泵(beng)或砂泵提(tí)升,砂及少(shao)量污水進(jin)入池外砂(shā)水分離器(qì)内,砂分離(lí)外排,污水(shuǐ)回流至格(gé)栅井。
 
 

采購(gou):XLC型旋流沉(chen)砂池除砂(shā)機
* 表示必(bì)填
  • 請填(tian)寫采購 的(de)産品數量(liàng)和産品描(miáo)述,方便我(wǒ)們進行統(tǒng)一備貨。
聯系我(wo)們
客服QQ: 1076438690
服(fú)務熱線: 13585159616
售(shou)後服務: 025-57104069
電(diàn)子郵件: [email protected]
公(gong)司地址: 江(jiāng)蘇省南京(jing)市六合區(qū)永甯路46号(hao)
  • 聯系電話(hua) 電話025-57104069
  • 傳真(zhēn) 手機13585159616
  • 郵箱(xiang) 郵箱[email protected]
  • 地址(zhǐ) 公司地址(zhi)江蘇省南(nan)京市六合(he)區永甯路(lu)46号
南京新(xīn)藍深井泵(beng)廠版權所(suo)有 備案号(hào):         
  • 公衆号二(er)維碼 公衆(zhōng)号二維碼(mǎ)
总 公 司急(jí) 速 版WAP 站H5 版(bǎn)无线端AI 智(zhì)能3G 站4G 站5G 站(zhan)6G 站
··
··
·
·
·